Working Hours Monday - Friday 08:00-16:00
Toll Free +91-9746754664

What We Do

Welcome to Richmonde Steel Solutions

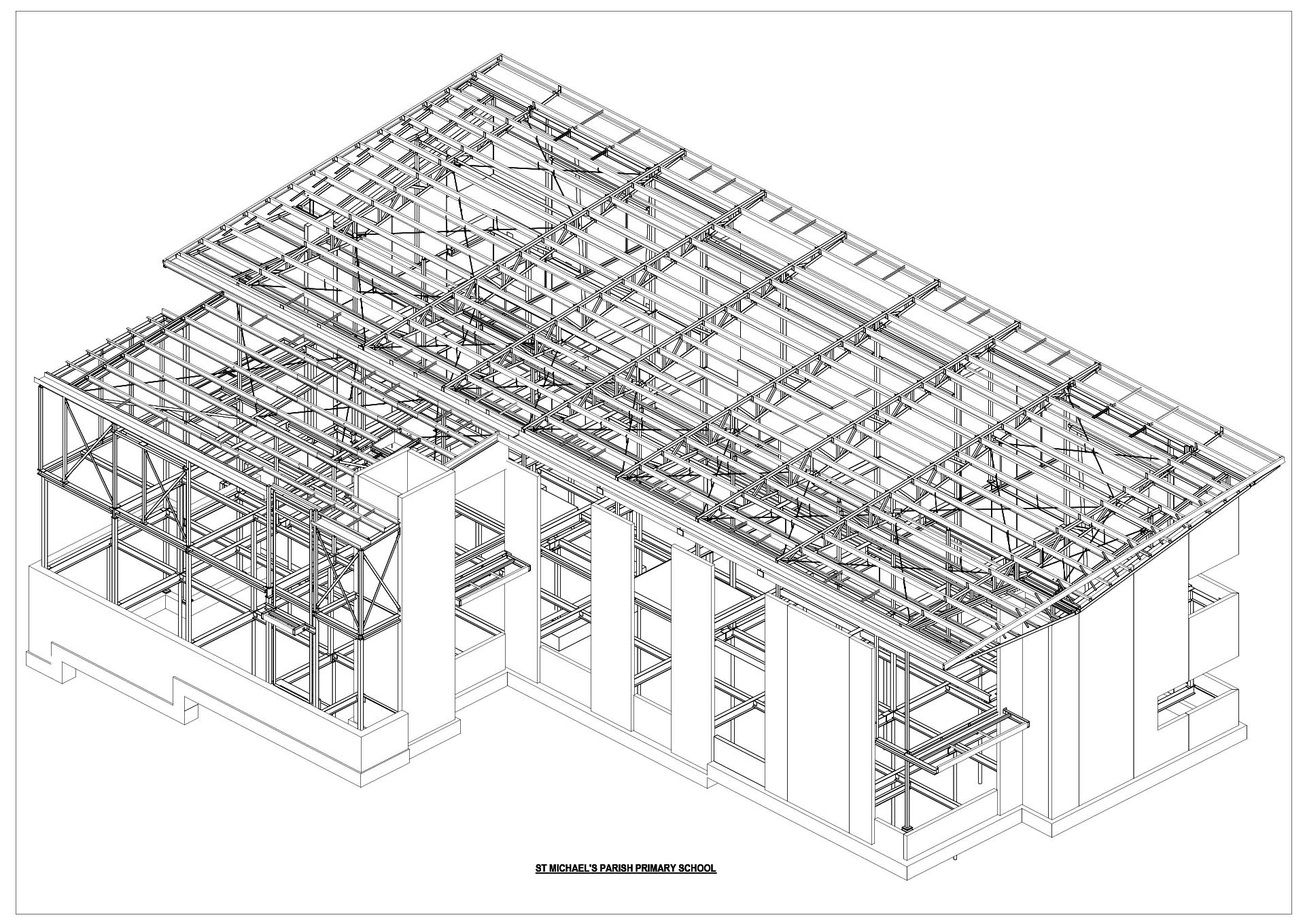
At Richmonde steel solutions, we bring together years of experience in many complex structural steel projects in USA, Australia, Canada, Middle East and Asia. We have been working in the construction industry since 1997 and have resources capable of producing shop drawings for structural steel works of simple warehouse buildings to complex space frame structures with accuracy and efficiency.

With offices in India & Australia, we have a team of experienced and qualified engineers, designers, architects, checkers and detailers who understand the industry requirements, site conditions and various relevant standards especially Australia, US & Canada. We also assist our clients in doing proper site measurements and in planning the site erection sequence where applicable. Our team has the experience and expertise not only in structural steel detailing & drafting, but are hands on with building construction, site management, structural analysis & design, shop fabrication and site erection work. This has been helping us in providing cost effective and professional services exceeding customer expectations.

Read More

Get a
Quote